
Status: Active
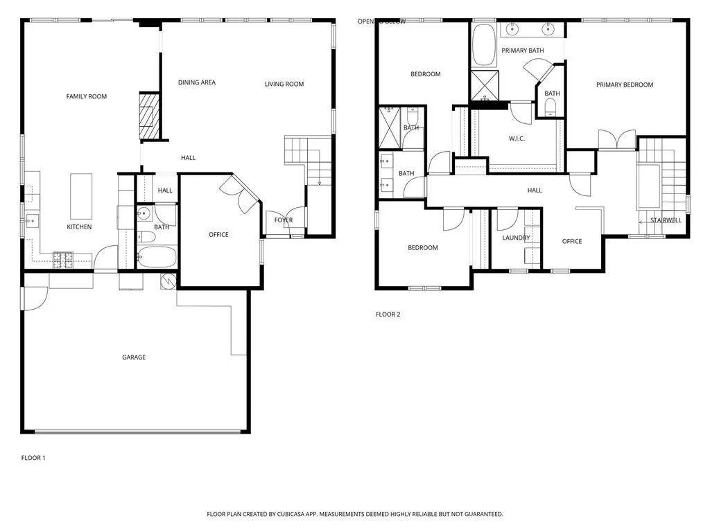
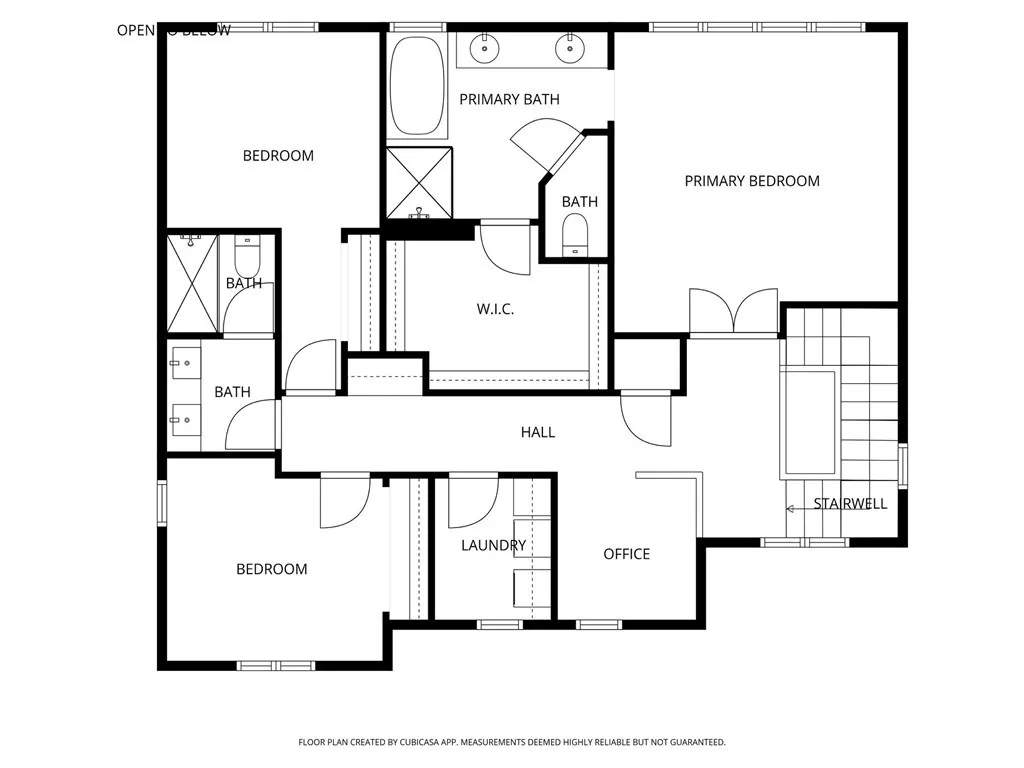
Fantastic Pool Home Opportunity! This beautifully maintained home features fresh exterior paint, drought-resistant front yard landscaping, and RV parking with double gates. Inside, youll find dual pane windows with shutters throughout and a great floor plan that blends comfort and style. The upgraded kitchen offers quartz countertops, modern cabinets, and an island that opens to the family room with a cozy fireplace. Theres a convenient bedroom and full bathroom on the first floor. Upstairs, the primary suite includes a walk-in closet, and the guest bathroom has been updated with new cabinets, countertops, and a walk-in tile shower. Youll also find a loft/office area and a convenient upstairs laundry room. The garage is fully finished with drywall, built-in cabinets, epoxy flooring, and its own A/C systemperfect for a workshop, gym, or hobby space. Enjoy entertaining in the backyard with an Alumawood patio cover, a recently resurfaced pool and spa, and a relaxing fire pit area. Even all the pool equipment has been replaced! Located in a great community close to shopping, restaurants, and morethis home has it all!
Listing provided courtesy of James Powell of Top Producers Realty, Ryjen Group. Last updated . Listing information © 2025 SDMLS.