
Status: Active
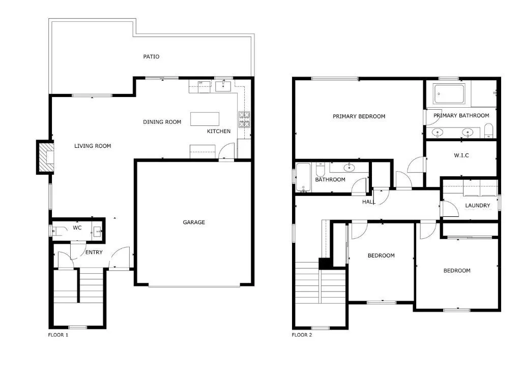
Tucked behind the gates of the highly desirable Redondo Village community, 15900 Ocean Lane is a beautifully upgraded, completely detached 3-bedroom, 2.5-bathroom home offering 1,737 square feet of well designed living space. Thoughtful improvements include new windows and slider (2023), new HVAC (2023), a kitchen remodel (2017), a new water heater (2024), fresh exterior paint (2026), and upgraded lighting in both the Great Room and Primary Suite (2025). With low HOA dues that include front yard maintenance, water, and trash, this home offers both convenience and privacy with no shared walls. Enjoy a spacious two-car garage plus additional driveway parking, wood flooring throughout the main level, and plush carpeting upstairs. The open-concept Great Room features a cozy gas fireplace and seamless access to a private, low-maintenance backyard with ample patio space - perfect for relaxing or entertaining al fresco. A convenient main-floor Powder Room enhances the functional layout. The renovated Kitchen is a true centerpiece, showcasing quartz countertops, stainless steel appliances, a center island, mosaic backsplash, direct garage access, and stylish two-toned cabinetry, all flowing effortlessly into the dining area. Upstairs includes a convenient dedicated laundry room, two spacious secondary bedrooms, a large hall bathroom with a tub/shower combo, and the Primary Suite. The expansive Primary Suite offers a massive walk-in closet and a luxurious ensuite bath with dual vanities, a soaking tub, and a separate shower - the perfect retreat. Ideally located on a peaceful dead-e
Listing provided courtesy of Alex Horne of reframe. Last updated . Listing information © 2025 SDMLS.