
Status: Active
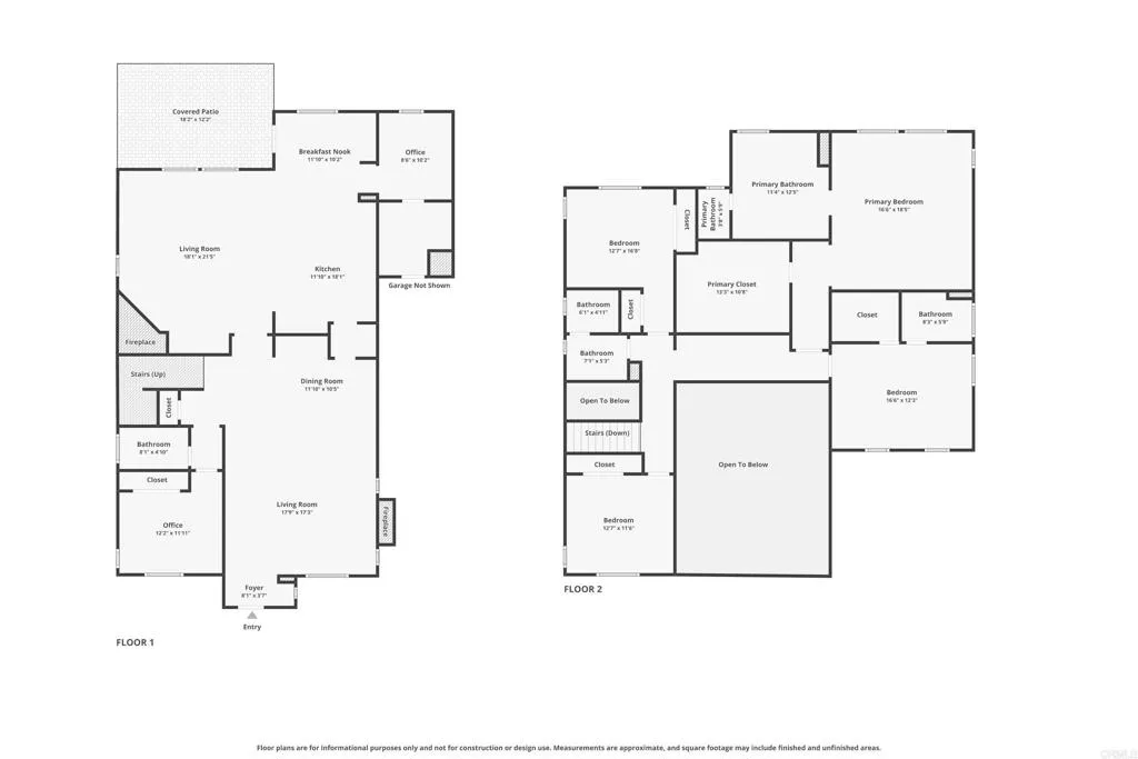
Welcome to this beautifully maintained 5-bedroom, 4-bathroom home located in the highly desirable Eureka Springs community. Built in 2009 and offering approximately 3,382 square feet of living space, this spacious residence combines comfort, functionality, and an ideal layout for modern living. Step inside to soaring ceilings in the living room that create a grand and inviting first impression. The thoughtfully designed floor plan includes a convenient downstairs bedroom and full bathroomperfect for guests, multi-generational living, or a private office. The heart of the home features a large chefs kitchen that opens seamlessly to the family room, creating the perfect space for entertaining and everyday living. Bamboo wood flooring adds warmth and elegance throughout the main level. Enjoy added privacy as the home backs to open space, offering a peaceful setting and scenic backdrop. Additional highlights include a 3-car garage and a solar energy system with a 25-year prepaid Power Purchase Agreement through Sunrunfully paid with no monthly payments, while Sunrun continues to maintain the system (agreement began 4/15/2019). Ideally located near several highly rated charter schools and just minutes from Lake Dixon, where you can enjoy fishing, camping, hiking, biking, and more. This home offers the perfect blend of location, lifestyle, and value.
Listing provided courtesy of Ruth McDonald of Berkshire Hathaway HomeService. Last updated . Listing information © 2025 SDMLS.