
Status: Active
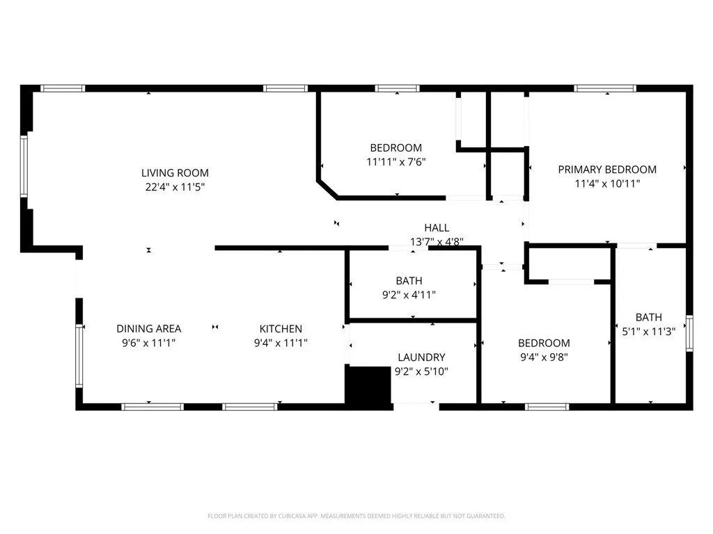
Welcome to this beautiful well maintained 3-bedroom, 2-bathroom home built in 2021, offering 1152 sq. ft. (approximately) of comfortable living space. This modern home features an open floor plan with plenty of natural light, a spacious kitchen, and well-sized bedrooms, perfect for family living. Located in the desirable Brookside Country Club community, residents enjoy wonderful amenities including a sparkling pool, a club house, playground for the kids, and many other amenities, all in a welcoming pet and family-friendly environment. The property's carport has space for up to 3 cars. It is conveniently situated near the 605, 60, and 10 freeways. This location offers easy access to shopping and schools.
Listing provided courtesy of Maricela De La Torre of CENTURY 21 CITRUS REALTY INC. Last updated . Listing information © 2025 SDMLS.