
Status: Active
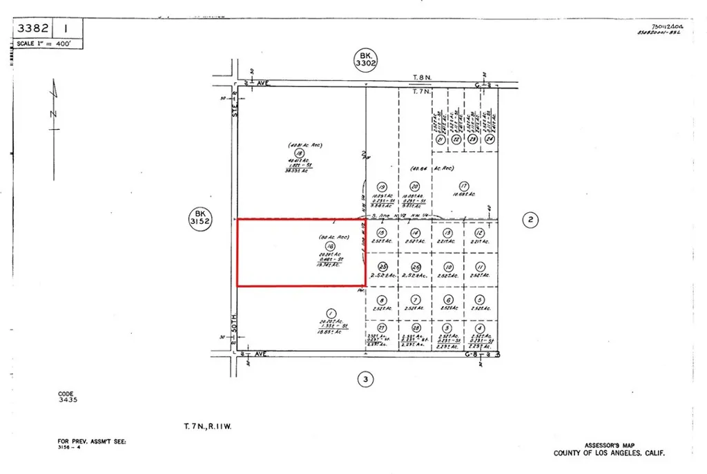
Discover wide-open space and endless potential with this expansive 20.37-acre parcel, APN: 3382-001-016 in the growing Roosevelt area of Lancaster. Ideally located just east of Highway 14 on 50th Street East and Avenue G-6 East (between East Avenue G and East Avenue H), this property offers both accessibility and seclusionperfect for those seeking a strategic investment or a future development opportunity. Surrounded by large parcels, rural homes, and ongoing growth in the Antelope Valley, this flat and usable land has 676 feet of frontage on 50th street and 1,313 feet deep, provides a blank canvas for a variety of possibilities, from a custom ranch or off-grid retreat to long-term land banking. The proximity to Highway 14 ensures convenient access to Lancaster, Palmdale, and beyond, while still maintaining the peace and quiet of the high desert. With wide-open skies, desert beauty, and strong upside potential as the area continues to expand, this is a rare opportunity to secure a sizable piece of land in a path of growth. Dont miss your chance to invest in the future of the Antelope Valley. Immediate neighbor's address: 46400 50th Street East, Lancaster, CA 93535.
Listing provided courtesy of Scott Vu of Nexus Commercial. Last updated . Listing information © 2025 SDMLS.